Mark


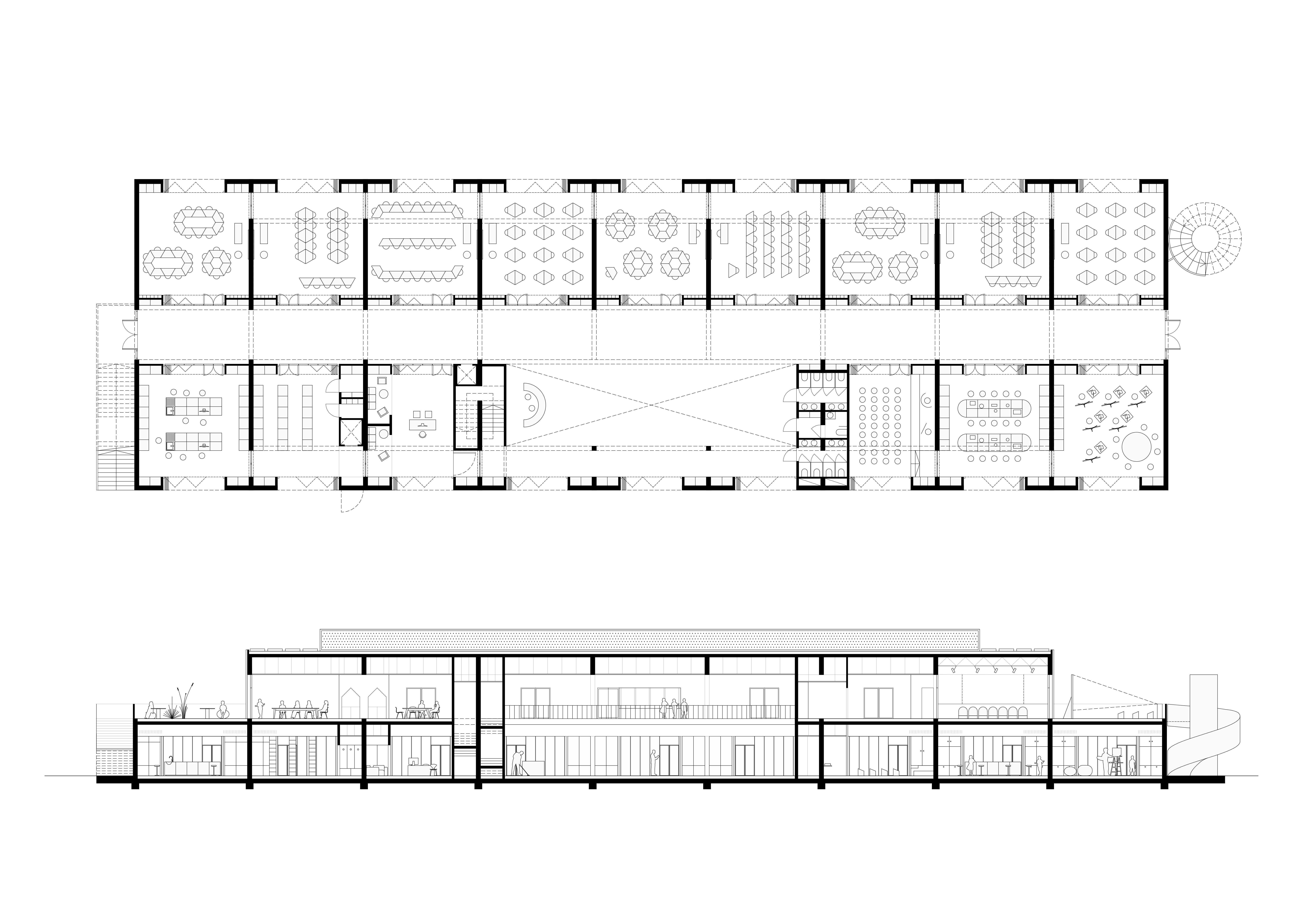
32. School in Ceranova




















     
Design proposal for the new middle school in the village of Ceranova, in north Italy.
Architecture:
GICO studio - Giovanni Cozzani, Elena Sofia Congiu, Flaminia Iacobini, Adriana Pla Lopez

Year:
2023

Location:
Ceranova, Italy

Status:
Competition entry